ZSQ-II庫側散裝機
.jpg)
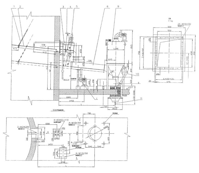
散裝機是一種包裝設備,庫側水泥散裝機主要用于散裝水泥及其它粉狀物料。庫側散裝機安裝于水泥庫的側面,供汽車、火車等的罐形容器裝料。主要由“卸料閘門”、“輸送斜槽”、“彎頭”、“下料接管”、“散裝機”、“除塵器”、“斜槽風機”等組成。庫內部分通過支架吊掛在水泥庫內部,以10%的斜度放置,以使水泥料倉內的水泥粉呈流態化(此高壓壓縮空氣由用戶自備羅茨風機或由廠內壓縮空氣總管經減壓后接入)。“出料連接槽”、“輸送斜槽”在水泥庫外按出料順序連接同樣以10%的斜度放置,正常使用時打開。“卸料閘門”用來控制散裝機裝車時的水泥落料狀態;“斜槽風機”用來使輸送斜槽內水泥物料流態化。散裝機為其主體設備,其下料頭伸縮長度為1.6米,以適應不同車型的裝車要求。
技術參數表
| L | 2985 | 3480 | 3380 | 4475 | 4975 | 5475 |
| H | 1410 | 1460 | 1515 | 1565 | 1620 | 1670 |
| E | 260 | 315 | 365 | 395 | 470 | 520 |
| C | 2000 | 2500 | 3000 | 3500 | 4000 | 4500 |
.jpg)


