SZ型水泥散裝設備
.jpg)
一、概述
SZ型水泥散裝機主要用于散裝水泥以及建材、冶金、煤炭、化工、糧食等部門粉狀物車、船裝卸。該機具有裝車全過程實現自動控制,工藝適應性強、無粉塵外揚、料滿指示可靠、結構簡單、造價低廉特點。我們南通江森機械公司設計生產的水泥散裝機等系列產品技術指標達到國際同類產品水平。
二、型號
(1) 庫底水泥散裝機(SZ-I型)
SZ-I型水泥散裝機可安置在倉底或適當設備的端部,供散裝汽車、火車或船裝料用。該機裝有自動料滿指示和控制裝置并有含塵氣體接口,可以消除裝車時料滿外溢和粉塵飛揚問題。該機裝料口采用可伸縮的形式,以適應不同車型和不同位置進行裝卸的場合。
主要技術參數:
裝車能力:60-150t/h
裝料口升降高度:1.5-3.5m任選
整機功率:1.5kW 整機重量:442kg
(2) 庫側水泥散裝機(SZ-II型)
SZ-II型水泥散裝機為庫側安裝,適用于散裝汽車、火車或船裝料。該機由庫側卸料閥,空氣輸送斜槽和SZ-I型散裝機構成,并具有SZ-I型散裝機的全部功能。
SZ-II型散裝機分直通式和非直通式,根據工藝布置需要而定。
主要技術參數:
裝車能力:60-300t/h(根據工藝要求定)
裝料口伸降高度:1.5-3.5m任選
整機功率:4kW 整機重量:900-1200kg
(3) SZ-III型水泥散裝機
SZ-III型水泥散裝機裝料口可在水平面內作直線移動,適用于散裝火車、大型多進料口散裝汽車和散裝船裝料。該機由庫側卸料閥、空氣輸送斜槽、行車小車和裝車頭等組成,并具有SZ-I型散裝機的全部特點。
主要技術參數:
裝車能力:60—300t/h(根據工藝要求定)
裝料口升降高度:1.5—2.5m任選
裝料口水平移動距離6.5m 整機功率:5.0kw
整機重量:2500—4000kg
三、說明
1、水泥散裝設備不適用于有粘濕性、腐蝕性、溫度高于150℃的物料。
2、SZ型水泥散裝機裝車速度是通過卸料閥以及輸送設備的輸送能力來確定。一般情況下,裝大型汽車、火車或船需要速度很快。約120—300噸/小時,裝普通散裝機汽車要求速度慢一些,約60—100噸/小時。
3、在工作場地有壓縮氣源(壓力約0.4MPa)情況下宜選用氣動閥門。
4、對有特殊需要的用戶可進行專門設計制造。
5、SZ型水泥散裝機分控制柜控制和按鈕站控制兩種形式,訂貨時需說明要求。
6、訂貨時應注明機型及臺數并附工藝簡圖。
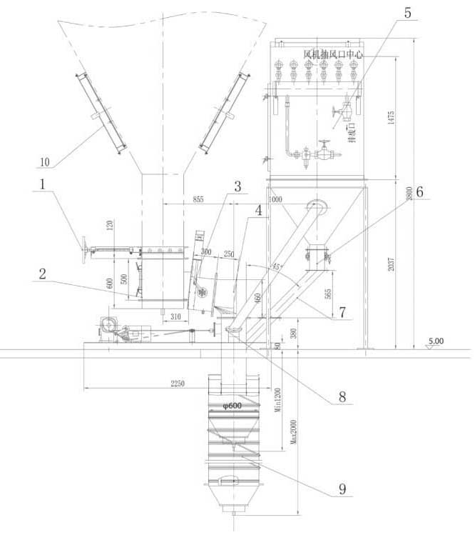
1、庫底散裝示意圖
.jpg)
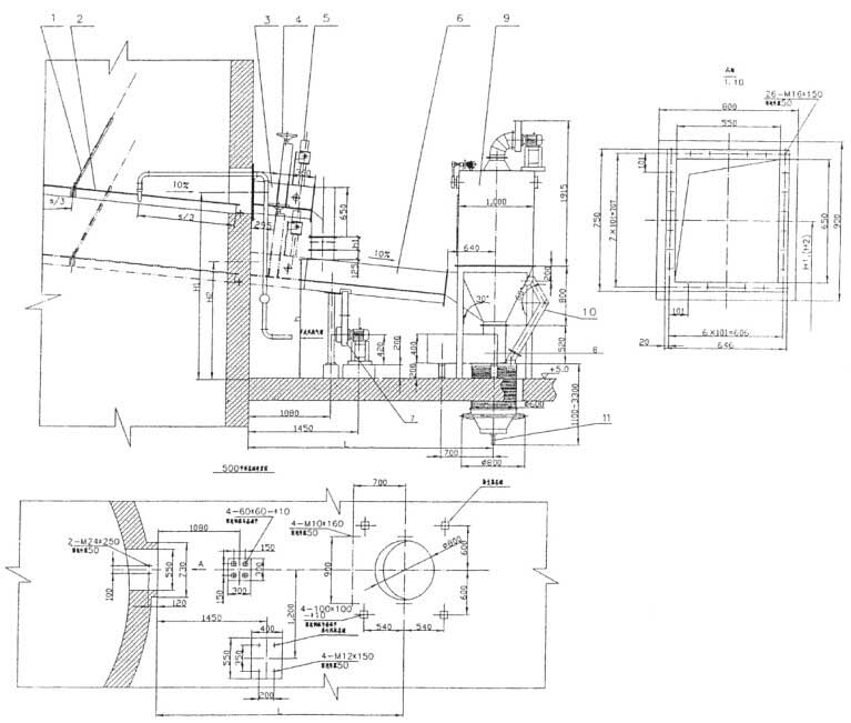
2、庫側散裝機示意圖
.jpg)
四、說明
一、本散裝機適宜安裝在庫側,裝車能力為60-300t/h;
二、斜槽安裝傾斜角度為6°,當增大或減小傾斜角度時,裝車能力相應變化。
五、說明
1、本機供貨不包括鋼軌,要求用戶自備鋼軌并固定;
2、鋼軌應在同一平面內高差≤1mm,軌道接頭處高低差<1mm;
3、鋼軌中心距為1000±1.5mm;
4、鋼軌端頭5620mm處配焊JY28-00-13行程開關支板一塊作為運動極限限位。


